Basement Remodeling. Seattle
Before
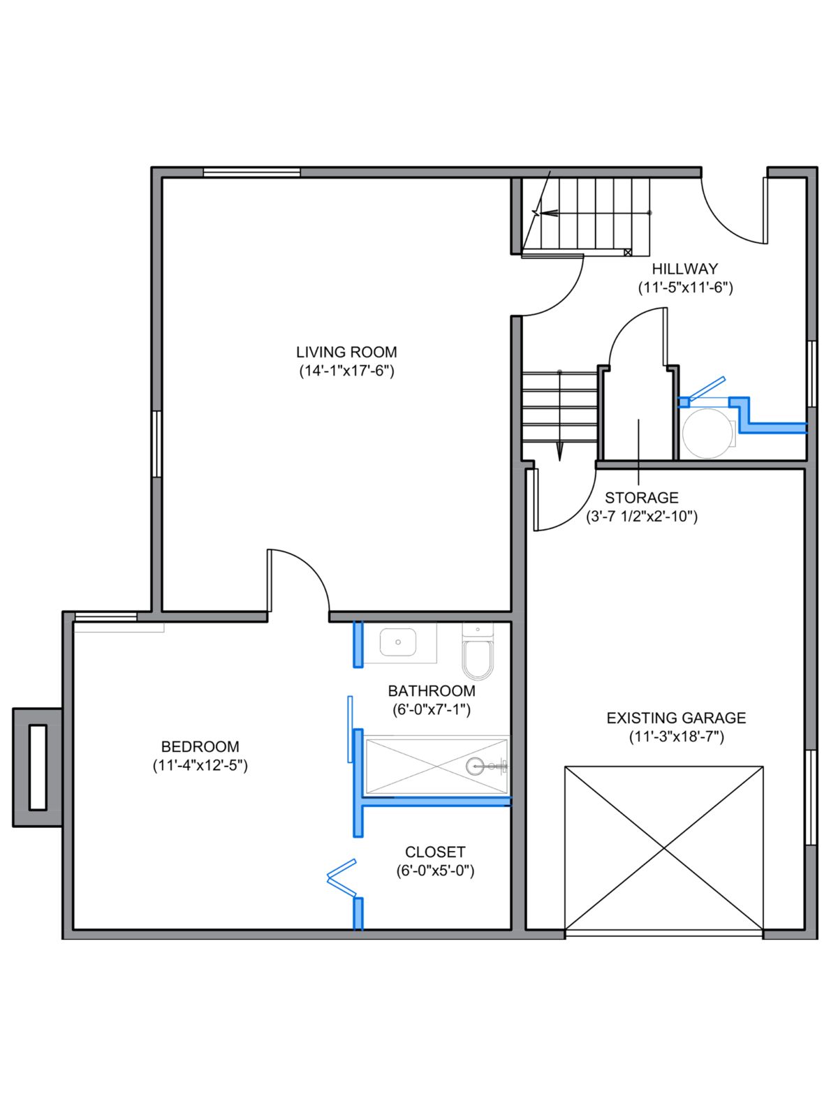
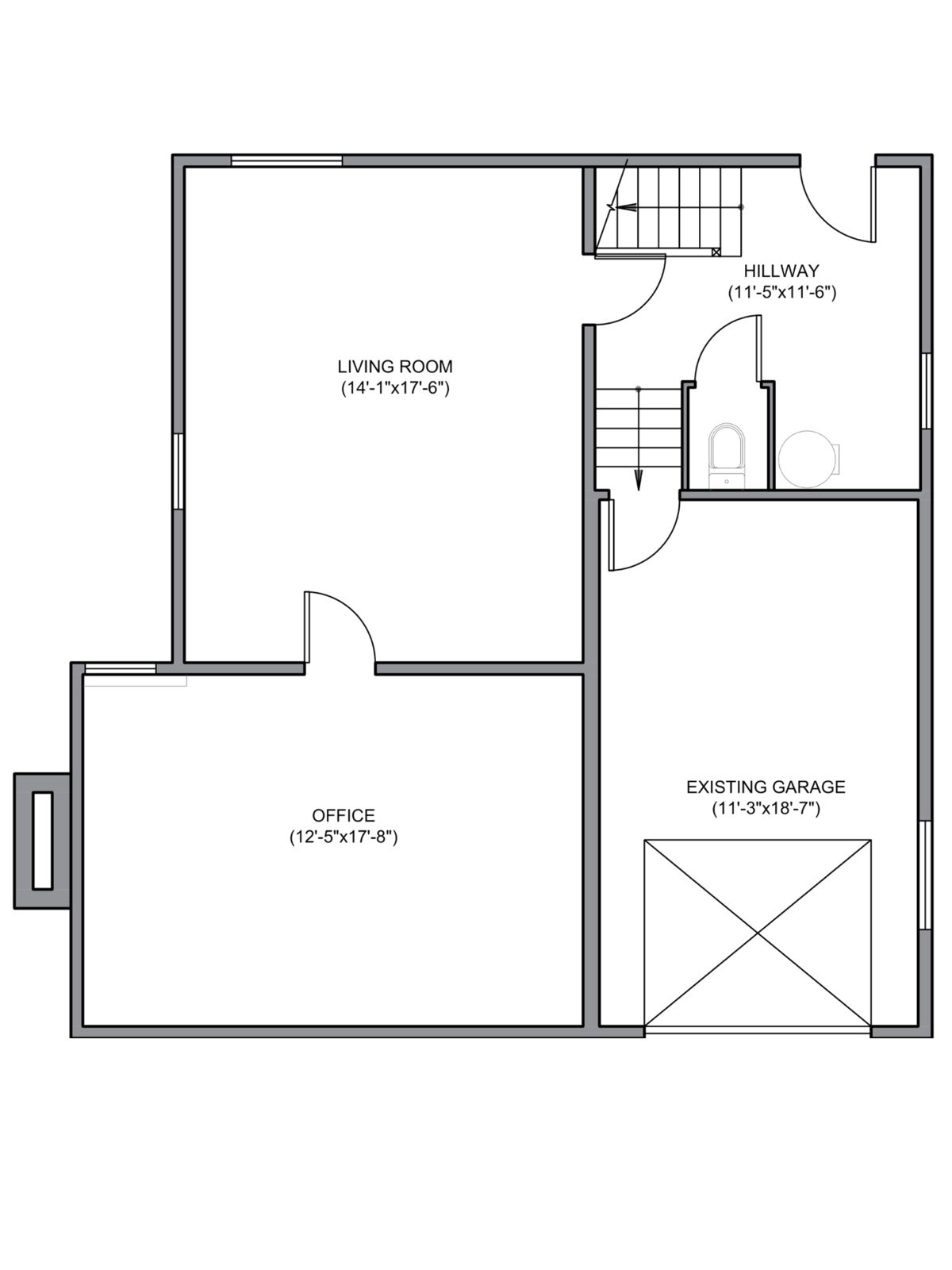
Floor plan before Floor plan after
Authority

About this project

Rethinking the Basement+$273,000 to the Value in Just 5 Months

The client approached us with a desire to transform a dark, non-functional basement in a 1960s house into a full-fledged living space. We completely changed the layout, creating a spacious bedroom, shower room, walk-in closet, living room, hall, and utility room.

We carried out a major demolition, opened up the floors, cut concrete, laid new utilities, and insulated the walls. We rebuilt the stairs according to code — with intervention into the structure of the first floor — and moved the doorway, opening up a load-bearing wall.

The project was implemented quickly: the contract was signed on November 16, and on December 19, the building permit was obtained. In just 5 months, we created a separate, stylish, and fully functional living unit with a separate entrance — and added +$273,000 in market value to the house.

View more
Project Type: Basement Remodeling
Location: Seattle, WA
Project duration: 5 months
Home size: 1,570 sq ft - 2002 sq ft

Before
Vs After

See the full transformation. From the original layout to the finished design, the AG Construction team carefully reimagined the space to deliver a modern, functional, and beautifully crafted result.

After renovation
Before renovation

Made Possible by the Team

Meet the dedicated professionals who brought this project to life — from planning and permits to the final finishing touches.

Ekaterina Zasorina

Ekaterina Zasorina

Permit Administrator

Temirlan Makhmet

Temirlan Makhmet

Project Manager

Dmitry Galperin

Dmitry Galperin

Construction Manager

Get Inspired by Similar Projects

Explore similar remodeling projects completed by the AG Construction team. See how thoughtful design, and expert craftsmanship transform homes across Seattle and nearby areas.

Imagine this result in your own home — it's completely doable

Meet your dedicated team and get a clear plan for your remodel